Bond & Plant Facility Levies Information
The purpose of the information below is to provide Kimberly School District patrons with clear, factual details about the proposed $57.8 million school bond and Plant Facilities Levy. This page outlines the needs these measures address, how funds would be used, and the potential impact on students, schools, and taxpayers to support informed decision-making.
Election Details
Residents of the Kimberly School District may vote on the bond and plant facility levy on Election Day, May 19, 2026.
Polls will be open from 8:00 AM to 8:00 PM at your assigned polling location.
Voters are required to bring a valid photo ID. If you are not registered, you may register in person on Election Day by providing proof of residence.
Early voting is typically available through the Twin Falls County Elections Office prior to Election Day. Absentee ballots may also be requested in advance if you are unable to vote in person.
To:
- Check your voter registration status
- Request an absentee ballot
- Find your polling location
Visit voteidaho.gov or contact the Twin Falls County Elections Office for more information.
BOND LEVY
What it Funds
The proposed bond is designed to address current and future student needs by improving academic, athletic, and community-use facilities across the district.
Proposed Projects
Fine Arts Building (950 seats)
A new performing arts facility with dedicated classroom space to serve both middle school and high school students, supporting music, theater, and other fine arts programs.
Middle School Gymnasium
The current gymnasium no longer accommodates the size of the middle school student body. This addition will provide adequate space for physical education and athletics, including a dedicated wrestling room.
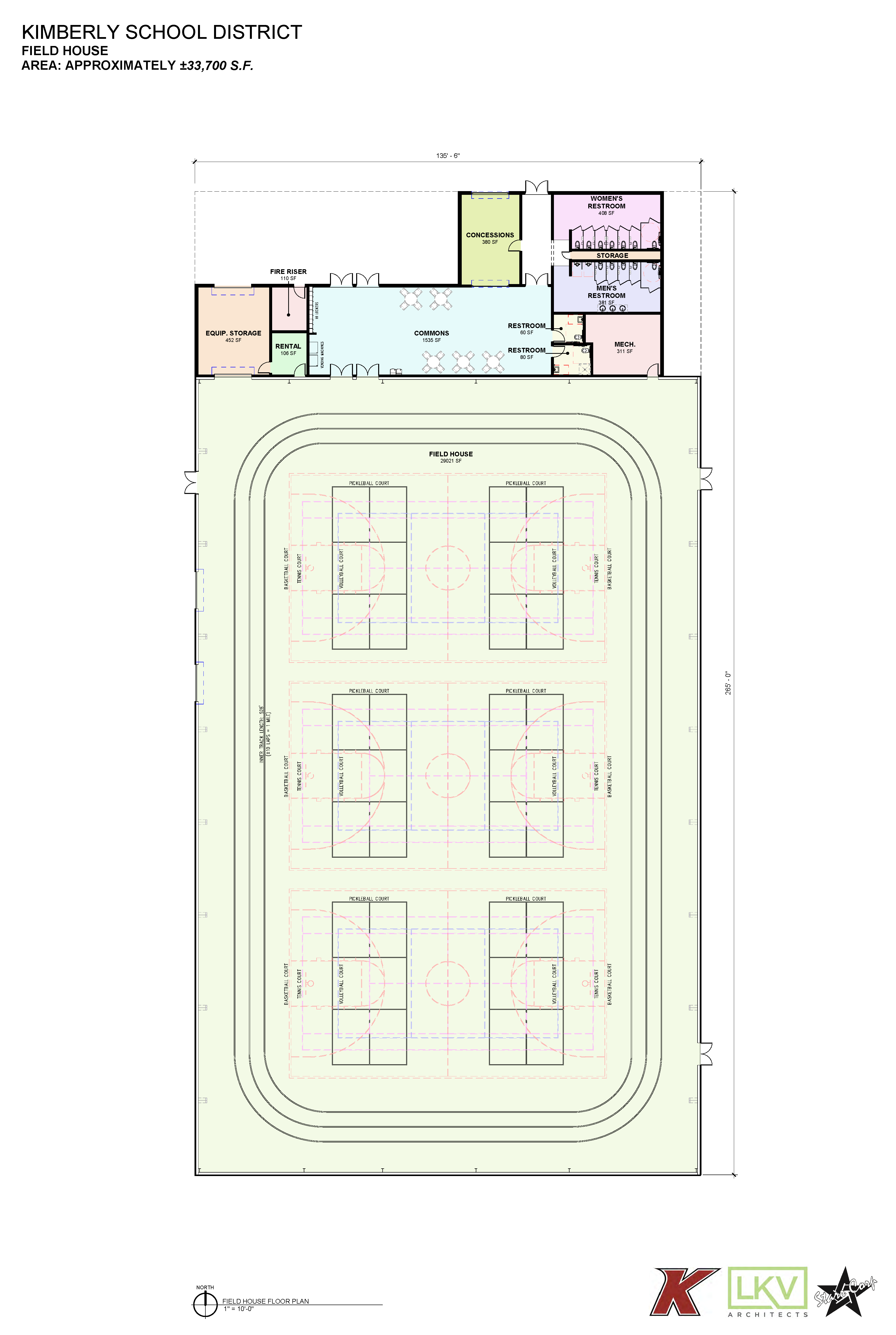
Multi-Purpose Field House
A flexible indoor facility designed to support physical education classes, athletic programs, and potential community use.
Outdoor Facilities Expansion (West of High School)
Development of existing district-owned property to expand student and community access to outdoor activities, including:
- Baseball and softball fields
- Two soccer fields
- Outdoor basketball courts
- Pickleball/tennis courts
- One-mile walking path
- Parking additions
Middle School Traffic & Parking Improvements
Updates to improve traffic flow, reduce congestion, and enhance safety during student drop-off and pick-up.
Dedicated Bus Loading Zone
A separate bus loading area designed to clearly separate bus traffic from cars and pedestrians, improving safety and overall efficiency.
Why This Bond is Recommended
Student Safety & Traffic Flow
Current congestion during drop-off and pick-up creates safety and efficiency challenges. Improvements are designed to better manage traffic patterns and separate buses, vehicles, and pedestrian movement.
Overuse & Limited Space
Existing facilities are heavily used, with shared or limited space for athletics and fine arts. As programs continue to grow, additional and dedicated spaces are needed to support student participation.
Equity in Student Experience
These improvements help ensure students have access to facilities that support a well-rounded educational experience, aligning opportunities with those commonly available in neighboring districts.
Community Access & Use
Proposed facilities are designed to serve both students and the broader community, supporting recreation, events, and local activities.
Planning for the Future
The bond addresses current needs while preparing for continued growth. Proactive planning helps improve infrastructure now and reduce larger challenges in the future.
Tax Impact Statement: The estimated average annual cost to the taxpayer on the proposed bond levy is a tax of $277 per $100,000 of taxable assessed value, per year, based on current conditions. The interest rate anticipated on the proposed bond issue, based upon current market rates, is four and forty hundredths percent (4.40%) per annum. The total amount estimated to be repaid over the life of the bonds, based on the anticipated interest rate, is $105,236,750, consisting of $57,834,000 in principal and $47,402,750 of interest. The term of the bonds will not exceed thirty (30) years from the date of issuance.
The estimated average annual cost to the taxpayer on the proposed bond levy is a tax of $277 per $100,000 of taxable assessed value, per year, based on current conditions.
As of May 19, 2026, the total existing bonded indebtedness of the District, including interest accrued, is $14,711,618.
Bond Renderings




Plant Facility Levy - $500,000
What it Funds
The Plant Facilities Levy provides funding for the ongoing care and maintenance of existing district facilities. This includes:
- Routine maintenance and facility improvements
- Repairs and upgrades to existing buildings
- Safety and infrastructure needs
- Equipment and system replacements
- Support for replacement of aging district assets, such as buses, as they reach the end of their useful life
Important: These funds are not used for new construction. They are dedicated to maintaining and improving current facilities and infrastructure.
Why it's Needed
Protects Existing Investments
Maintains and preserves school buildings that have already been funded by the community.Prevents Costly Repairs
Proactive maintenance helps address issues early and reduces the likelihood of more expensive repairs in the future.Supports Safe, Functional Schools
Ensures facilities remain safe, operational, and aligned with current standards.Fills Funding Gaps
State funding does not fully cover the cost of maintaining school facilities, making local funding necessary to address ongoing needs.
Plant Facilities Levies are commonly used by school districts across Idaho to fund maintenance, repairs, and infrastructure needs that are not fully supported by state funding.
Tax Impact Statement: The estimated average annual cost to the taxpayer on the proposed levy is a tax of $40 per $100,000 of taxable assessed value, per year, based on current conditions. The proposed levy replaces an existing levy that expires on June 30, 2026, and that currently costs $24 per $100,000 of taxable assessed value. Therefore, if the proposed levy is approved, the tax per $100,000 of taxable assessed value is expected to increase by $16 per $100,000 of taxable assessed value. The proposed plant levy would be assessed for 10 years
Estimated Tax Impact - Combined Bond & Plant Facility Levy
If approved, the Bond and Plant Facilities Levy would be funded through property taxes. The estimated impact for property owners will vary based on taxable assessed value.
Please see the summary below for combined projected tax impact details.

FAQ
What is being proposed?
Kimberly School District is proposing a 57.8 million dollar school bond and a $500,000 Plant Facilities Levy to address facility needs, safety, and long-term planning.
Why is the district proposing these measures?
Kimberly School District does not currently have a dedicated fine arts facility and has limited gym space to support student programs, activities, and community use. Because there is no local recreation district, school facilities often serve as the primary spaces for athletics, fine arts, and community events. The proposed bond is intended to address these facility gaps and support long-term planning as the community continues to grow.
What is a school bond?
A school bond is a voter-approved funding method used to pay for large, long-term facility projects such as new construction, renovations, and major upgrades. Bond funds are restricted by law and cannot be used for salaries, programs, or day-to-day operating expenses.
What would the bond and plant facility levy fund?
If approved, bond funds would be used for:
BOND
- Construction of school facilities
- Safety and traffic flow improvements
PLANT FACILITY LEVY
- Building repairs and system upgrades (HVAC, roofing, plumbing, electrical)
- Equipment replacement related to facilities
- Technology and infrastructure tied to building operations
- Deferred maintenance to extend the life of school facilities
What is a Plant Facilities Levy?
A Plant Facilities Levy is a voter-approved property tax used to fund ongoing maintenance, repairs, and smaller facility projects. These funds are restricted to facility-related needs and cannot be used for salaries, programs, or classroom instruction.
How is a levy different from a bond?
A bond is used to fund major projects like new buildings or large-scale renovations and is repaid over a set period of time.
A Plant Facilities Levy provides ongoing, year-to-year funding for maintenance, repairs, and smaller facility upgrades.
Both are voter-approved and legally restricted to facility use - they cannot be used for salaries or general operating expenses.
How long would the bond and levy last?
The bond is repaid over 30 years through property taxes. The Plant Facilities Levy is approved for a defined period of time and requires voter approval to be renewed once that term ends.
Can these funds be used for salaries or operating costs?
No. Bond and Plant Facilities Levy funds are legally restricted and cannot be used for salaries, curriculum, or general operating expenses.
How does the district ensure accountability?
All bond and levy funds are subject to public oversight, audits, and reporting requirements. Funds must be spent only on voter-approved purposes.
What happens if the proposal does not pass?
If the measures do not pass, the district would continue operating with existing facilities and funding, which would limit the ability to address safety concerns, space constraints, and long-term maintenance needs.